Réf : 3208
Nouveauté

Le Pont-de-Claix (38800) LOCAL de 235 m² à Le Pont-de-Claix

1 Chambre(s)

Les infos Essentielles

Caractéristiques Valeurs
Type de transac Local commercial
Code postal 38800
Surface habitable (m²) 230 m²
Nombre de chambre(s) 1
Caractéristiques Valeurs
Nombre de niveaux 2
Superficie (m²) 230
Mode de chauffage Autre
Type de chauffage Autre
Caractéristiques Valeurs
Format de chauffage Individuel
Année de construction 1989
Copropriété NON

Bien rare, idéal pour les professionnels en quête d'un espace personnalisable et valorisable.

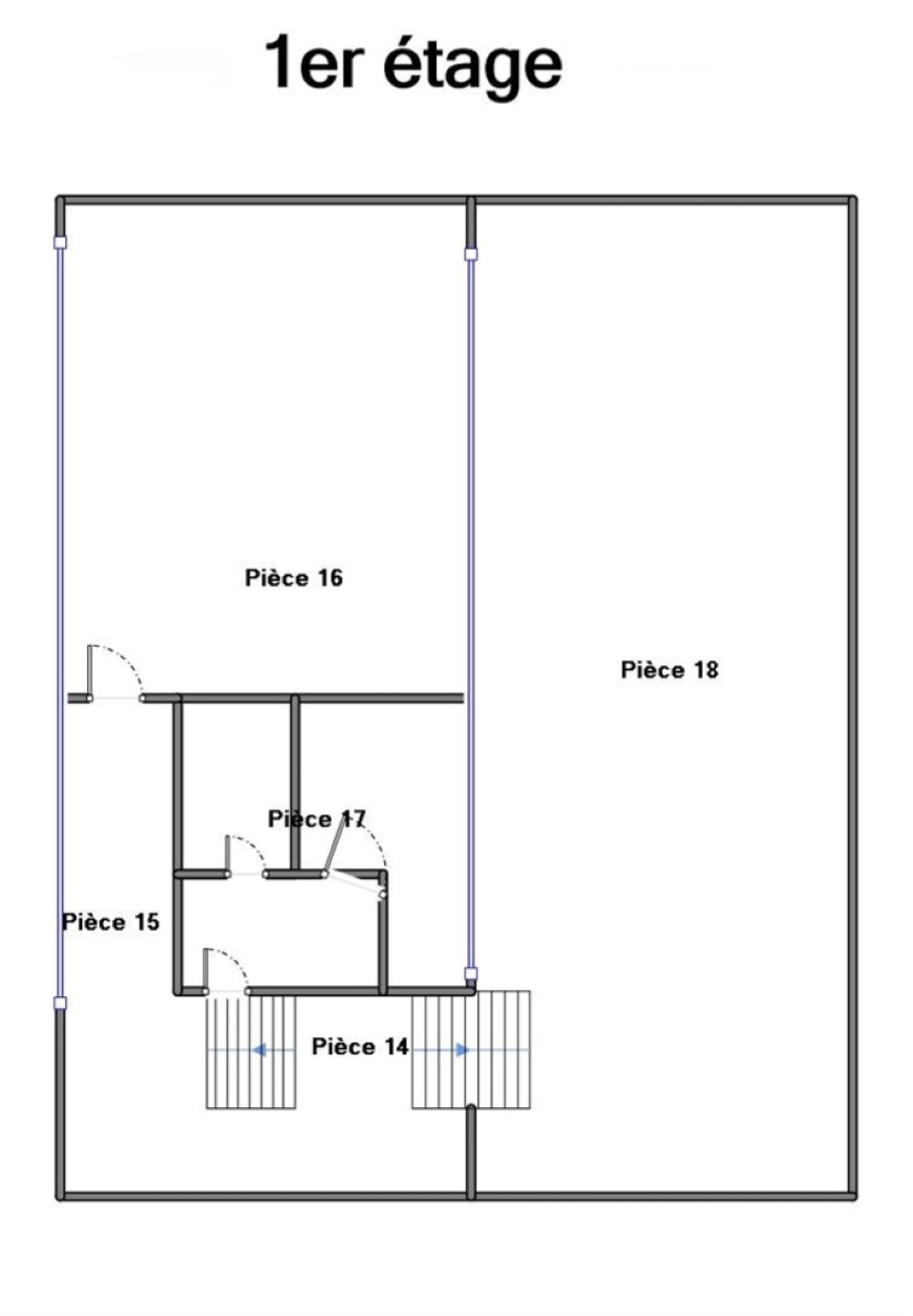
Implanté dans un secteur recherché, ce local d'environ 230 m², complété par une surface annexe, est réparti sur deux niveaux.

Il séduit par ses volumes généreux, sa configuration modulable et son fort potentiel de transformation.

Ce local offre une configuration propice à de multiples projets : activité professionnelle, bureaux ou professions libérales.

 

Le rez-de-chaussée propose un vaste espace d'accueil et plusieurs pièces indépendantes offrant une grande liberté d'aménagement.

A l'étage, un grand bureau lumineux, une pièce complémentaire et un espace sanitaire complètent l'ensemble.

Le bien nécessite des travaux de rénovation intérieure ainsi que des travaux de toiture, laissant entrevoir un fort potentiel de valorisation à moyen et long terme.

L'accessibilité est un véritable atout grâce à la présence de stationnements devant le bâtiment, facilitant l'accueil de la clientèle.

 

Chauffage par climatisation réversible. 

Local raccordé au gaz de ville.

 

Pour tout renseignement complémentaire, veuillez contacter Madame DERVAULT Delphine 06 61 82 53 01 ou Ddervault@relaximmo.fr

Les infos Financières

Prix de vente honoraires inclus 360 000 €
Les honoraires d'agence seront intégralement à la charge du vendeur  

Nos outils

Imprimer

Localisation Du bien

  • Commerces et santé
  • Loisirs
  • Ecoles
  • Transports
  • Pratique

Les infos Energetiques

DPE GES

Montant estimé des dépenses annuelles d'énergie pour un usage standard est compris entre 4 980 € et 6 750 € . Prix moyens des énergies indexés sur les années 2021, 2022 et 2023 (abonnements compris).

Rez de chaussée
accueil 61 m²

Etage 1
bureau 27 m²

chambre 13 m²

Intéressé(e) par Ce bien ?

* Champ obligatoire

Les informations recueillies sur ce formulaire sont enregistrées dans un fichier informatisé par La Boite Immo agissant comme Sous-traitant du traitement pour la gestion de la clientèle/prospects de l'Agence / du Réseau qui reste Responsable du Traitement de vos Données personnelles. La base légale du traitement repose sur l'intérêt légitime de l'Agence / du Réseau. Elles sont conservées jusqu'à demande de suppression et sont destinées à l'Agence / au Réseau. Conformément à la loi « informatique et libertés », vous disposez des droits d’accès, de rectification, d’effacement, d’opposition, de limitation et de portabilité de vos données. Vous pouvez retirer votre consentement à tout moment en contactant directement l’Agence / Le Réseau. Consultez le site https://cnil.fr/fr pour plus d’informations sur vos droits. Si vous estimez, après avoir contacté l'Agence / le Réseau, que vos droits « Informatique et Libertés » ne sont pas respectés, vous pouvez adresser une réclamation à la CNIL. Nous vous informons de l’existence de la liste d'opposition au démarchage téléphonique « Bloctel », sur laquelle vous pouvez vous inscrire ici : https://www.bloctel.gouv.fr Dans le cadre de la protection des Données personnelles, nous vous invitons à ne pas inscrire de Données sensibles dans le champ de saisie libre.
Ce site est protégé par reCAPTCHA, les Politiques de Confidentialité et les Conditions d'Utilisation de Google s'appliquent.
contacter l'agence
Nous suivre sur